Anfang Februar sind Entwürfe und Weißdrucke von technischen Regeln unter anderem zur Planung von Heizungsanlagen mit Wärmepumpen, zu Anforderungen und Prüfungen von metallischen Luftleitungen, zum Building Information Modeling und zu Multigassensoren erschienen. cci Wissensportal gibt einen Überblick über das aktuelle Normenwesen der LüKK und der TGA.
(Abb. © momius/stock.adobe.com) mehrcci Wissensportal
Ein Roter Faden für Planung und Ausführung in der Lüftungs-, Klima-, Kältebranche (LüKK). Die Online-Wissensplattform bietet recherchierbares leicht auffindbares Wissen.
Neue Normen – Februar 2026
Sicherheitsbauteile für Monoblock-Wärmepumpen mit brennbaren Kältemitteln
Am frühen Morgen des 3. Januar 2026 hat ein Brandanschlag im Südwesten Berlins zu einer großflächigen Unterbrechung der Stromversorgung gesorgt. Infolgedessen wurde eine mediale Debatte über eine mögliche Explosionsgefahr bei Luft/Wasser-Wärmepumpen mit brennbaren Kältemitteln geführt. cci Wissensportal stellt die zehn häufigsten Methoden beziehungsweise Sicherheitsbauteile solcher Wärmepumpen vor und erläutert diese hinsichtlich ihrer zu erwartenden Schutzwirkung. (Abb. © Michael Schaub)
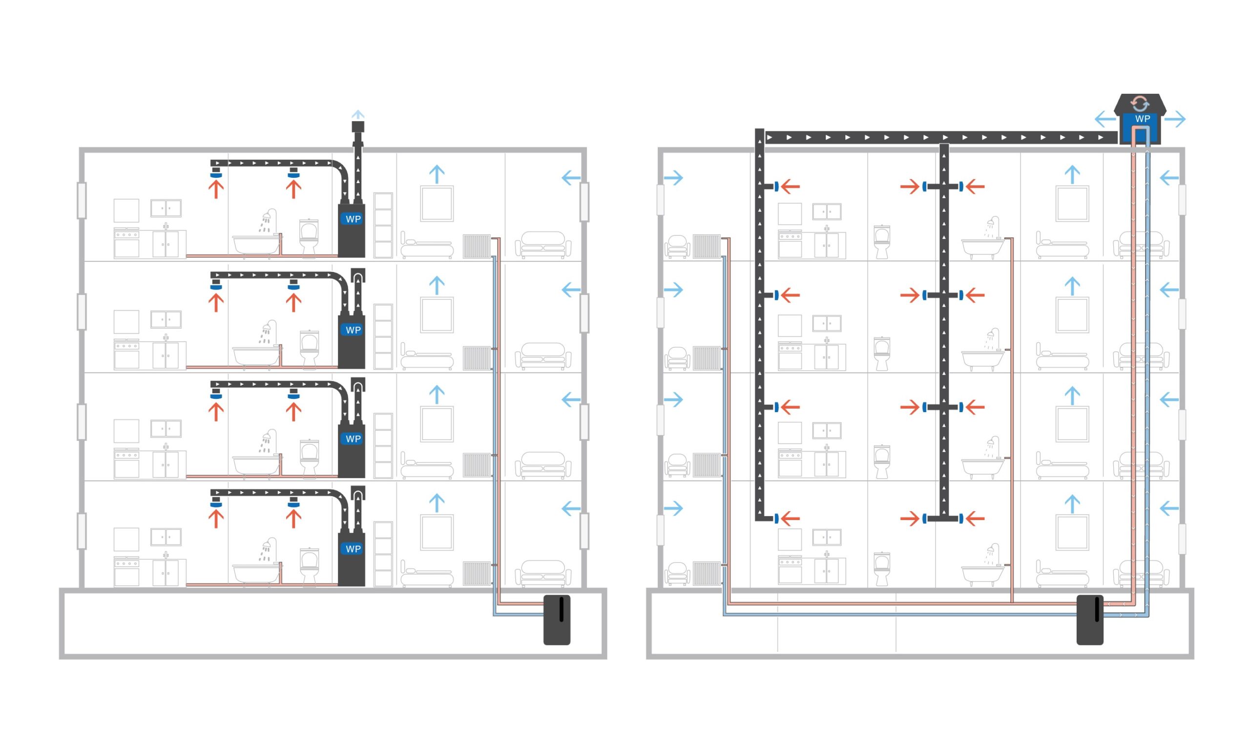
mehrVom Spitzenwert zur Systemlogik: Dimensionierung und energetische Bewertung von Heizung und Kühlung
DIN EN ISO 7730 „Ergonomie der thermischen Umgebung“ (2025)
Im Dezember 2025 ist eine Neufassung der DIN EN ISO 7730 „Ergonomie der thermischen Umgebung“ erschienen. Diese Norm ist die weltweit bedeutendste technische Regel zu allen Aspekten der thermischen Behaglichkeit von Personen in Räumen. Sie beschreibt Grundlagen und Verfahren, mit denen die thermische Behaglichkeit sowie der Grad der Unbehaglichkeit von Personen berechnet und bewertet werden können. (Abb. © Monika Wisniewska/stockadobe.com)
mehrUNTERNEHMEN EMPFEHLEN SICH
Neue Normen – Januar 2026
Anfang Januar 2026 sind Entwürfe und Weißdrucke von technischen Regeln unter anderem zu Verbrauchskostenabrechnungen bei VVS-RLT-Anlagen, zu Planung und Betrieb von Reinräumen (Trocken-Reinräume), zu Schulungen zur Planung und Errichtung von Wärmepumpenanlagen und zur Beurteilung der Raumluftqualität erschienen. cci Wissensportal gibt einen Überblick über das aktuelle Normenwesen der LüKK und der TGA. (Abb. © momius/stock.adobe.com)
mehrDie monatlich aktualisierte Liste zu technischen Regeln aus der LüKK
In diesem Beitrag finden Sie die stets monatlich aktualisierte Übersicht zu mehr als 350 Normen, Richtlinien, Verordnungen und Gesetzen aus der LüKK. In dieser nach Themenbereichen gegliederten Tabelle sind die Neuerscheinungen des Jahres 2023 in blau und die über 130 technischen Regeln, zu denen die Redaktion Zusammenfassungen erstellt hat, in grün gekennzeichnet (mit zugehörigen Artikelnummern). (Abb. © detakstudio/stock.adobe.com)
mehrExplosionsgefahr bei Wärmepumpen? Wie gefährlich ist ein Blackout wirklich?
Als im Januar 2026 ein mehrtägiger Stromausfall Teile Berlins lahmlegte, verbreiteten einige Publikumsmedien zusätzliche Verunsicherung. „Explosionsgefahr bei Wärmepumpen“ titelte beispielsweise die „Welt“ und warnte vor drohenden Totalschäden. cci Wissensportal schaut speziell auf die Technik von Monoblock-Geräten mit Propan als Kältemittel und zeigt, warum Panikmache völlig unangebracht ist. Plus Kommentar von Christoph Brauneis, Sprecher des VDKF. (Abb. © Selvam/stock.adobe.com)
mehrVDI 6022 Blatt 3 „Beurteilung der Raumluftqualität“ (2025)
Im Dezember 2025 ist eine Neufassung der VDI 6022 „Raumlufttechnik, Raumluftqualität. Blatt 3: Beurteilung der Raumluftqualität“ erschienen. Wesentliche Inhalte der Richtlinie sind Grundlagen, Vorgaben und Leitfäden zu Messungen von Schadstoffen in der Raumluft und Tabellen zur anschließenden Beurteilung und Einordnung der Raumluftqualität in eine der Kategorien RAL 1 bis RAL 3. (Abb. © Monkey Business/stock.adobe.com)
mehrStudie untersucht Luftreiniger mit UVC-LED-Strahlung gegen luftgetragene Viren
Mit Ausbruch der Covid-19-Pandemie 2020 ist das Risiko einer Übertragung von Viren über die Luft, insbesondere in öffentlichen Räumen und Gesundheitseinrichtungen, ins öffentliche Bewusstsein getreten. Ein Team, unter anderem mit Forschern des Institute for Animal Hygiene and Environmental Health an der FU Berlin und des Hermann-Rietschel-Instituts an der TU Berlin, hat unlängst Untersuchungsergebnisse veröffentlicht, in denen sie die Dekontaminationswirkung eines mobilen Luftreinigers mit 275 nm UVC-LED-Strahlung gegen luftgetragene Corona- und Influenzaviren bewerten. (Abb. © FU Berlin)
mehrEinfluss der Kältemittelart auf die energetische Effizienz einer Wärmepumpe
Inwiefern kann der Einsatz von Kältemittelgemischen anstelle von R134a und Propan (R290) dazu beitragen, die Leistungs- und Arbeitszahl einer Wärmepumpe zu verbessern? Mit dieser Frage hat sich der Lehrstuhl für Gebäude- und Raumklimatechnik am E.ON ERC in Aachen anhand von Prüfstandmessungen und ergänzenden theoretischen Untersuchungen beschäftigt. Die Ergebnisse zeigen einen überraschenden Gewinner des Kältemittelvergleichs. (Abb. © BWP)
mehr







































